bfi Mattersburg- Projekt Hausbau
bfi Mattersburg – Berufsvorbereitung und Berufsorientierung für lehrstellensuchende Jugendliche
Ein Niedrigenergiehaus mit Photovoltaik im Modell entsteht.
Im Auftrag des AMS veranstaltete das BFI Mattersburg, unter der Leitung von Frau Renate Wolf Houszka von März bis Mai 2017 ein Interessantes Projekt für arbeitssuchende Jugendliche.
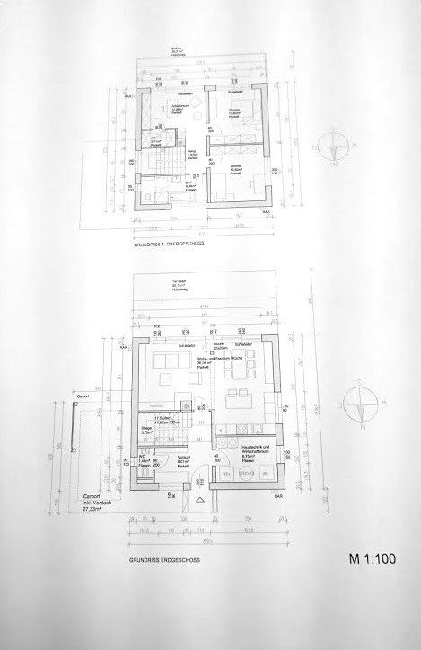
Die Maßnahme bietet interessierten Jugendlichen die Möglichkeit, Berufe rund um den Metall-Bereich sowie im Bereich Holzarbeiten kennenzulernen. Dazu wurde mit der Architektin Katharina Melchert ein Realplan gezeichnet nach welchem wir im Anschluss ein detailliertes Modell aus Holz mit unterschiedlichen, teils simulierten Funktionen errichteten. Gerald Kummer vom SV-Büro Csmarits leitete die Gruppe an und gemeinsam ließen wir ein ansehnliches Haus im Maßstab 1:20 entstehen.
Neben dem Umgang mit verschiedenen Werkzeugen lernten die Jugendlichen die unterschiedlichen Materialien kennen und wie sich in präziser Teamarbeit alles zu einem gemeinsamen Ganzen zusammenfügen lässt. Was alleine nicht zu schaffen ist oder zu kompliziert sein kann, schaffen viele fleißige Hände und kluge Köpfe in kurzer Zeit und das Ergebnis lässt sich sehen.
Zuerst wurde ein Sockel gebaut der einerseits den Boden und Keller darstellt und andererseits in einer Lade die Elektronik für Beleuchtung und Simulation bergen soll. Aus verschieden starken Balsahölzern wurden im Anschluss die Außen und Innenwände hergestellt wobei parallel die Verkabelung für die spätere Beleuchtung und die Versorgung mit einbezogen werden musste. Nach der Errichtung der ersten Decke wurde das zweite Geschoß errichtet und anschließend die Attika welche auch die Module der Photovoltaikanlage trägt. Der Außenbereich wurde begrünt und gepflastert um dem Modell ein realistisches Umfeld zu geben. Abgerundet wurde es durch kleine Möbel sowie einer aufwändig gearbeiteten Pergola.
Hausbau
Bau eines Niedrigenergiehauses mit Photovoltaik im Maßstab 1:20



